- Tipo de transacción
- Comprar
- Tipo
- Apartamento
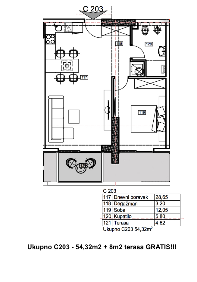
- Superficie
- 54 m2
- De los pisos
- 9
- Habitaciones
- 2
No hay descripción del inmueble
- Ubicación:
| País: | Montenegro |
| Provincia: | Budva Municipality |
| Ciudad: | Budva |
| Tipo de inmueble: | Apartamento |
- Especificaciones
| Año de construcción: | 2018 |
| Habitaciones: | 2 |
| Dormitorios: | 1 |
| Número de cocinas: | 1 |
| Superficie útil (?2): | 54 |
| Parcela (?2): | 6000 |
- Comodidades
| Revestimiento de suelo: | Azulejo, Laminado, Parquet, Moqueta, Madera, Mármol |
| Cuarto de baño: | Ducha |
| Otros servicios: | Despensa, Armario |
| Seguridad/protección: | Alarma, Videovigilancia, Llamada de intervención inmediata, Sistema de vigilancia, Detectores de humo |
| Equipamiento: | Ascensor, Jardín, Invernadero, Aire acondicionado, Chimenea, Sauna |
| Calefacción: | Eléctrica |
| Amueblado: | Sin amueblar |
| Marcos de ventanas: | Aluminio |
| Ventanas: | Insonorizadas, Con protección solar, Resistentes al calor, Blindadas |
| Vistas desde las ventanas: | A las montañas |