Inmueble sin nombre

  • Tipo de transacción
  • Comprar
  • Tipo
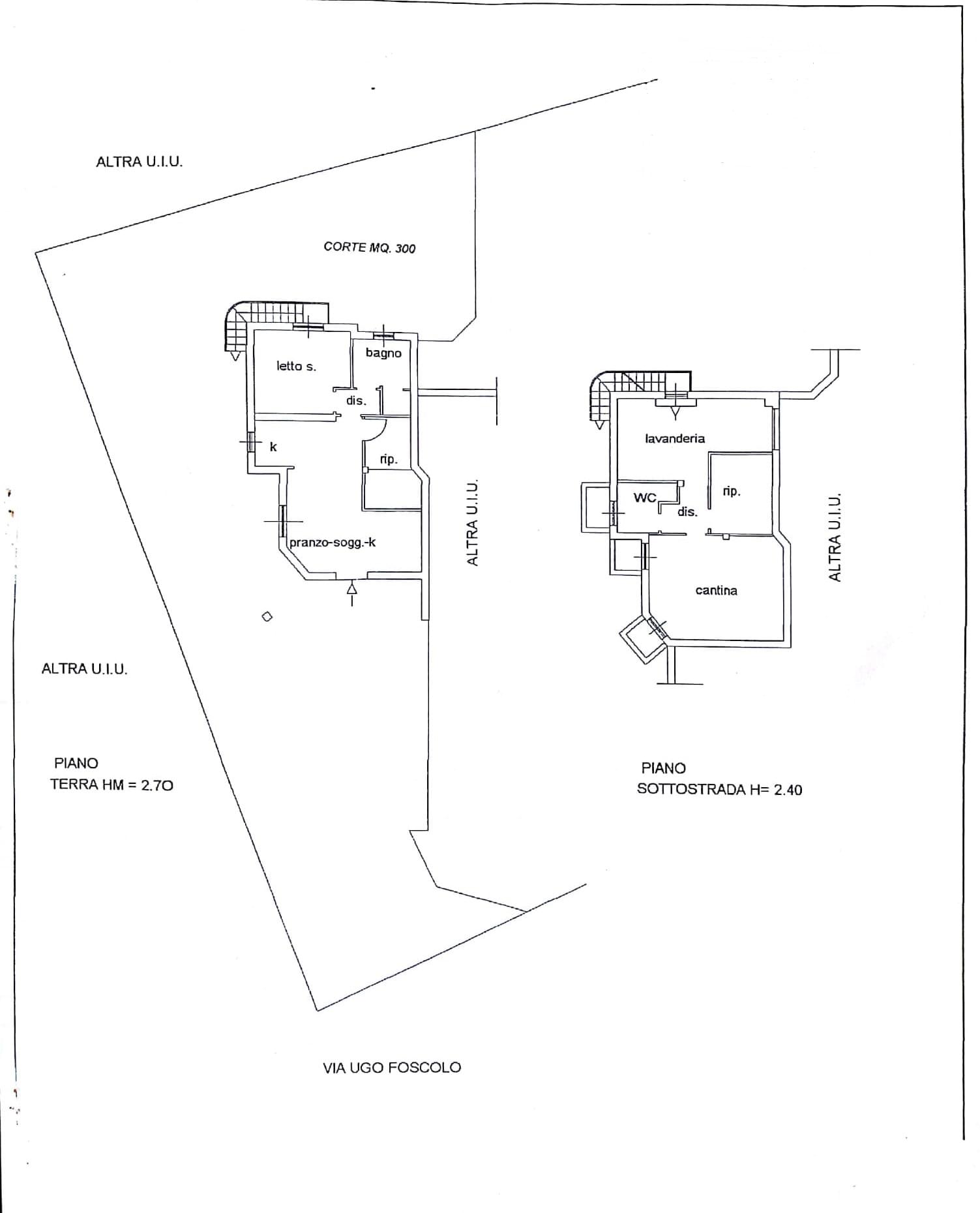
  • Villa/Casa de campo
  • Superficie
  • 140 m2
  • De los pisos
  • -
  • Habitaciones
  • -
No hay descripción del inmueble
  • Ubicación:
País:Italia
Provincia:Sardegna
Ciudad:Arbatax
Tipo de inmueble:Villa/Casa de campo
Comisión:15 000 €
Se puede negociar:
  • Especificaciones
Superficie útil (?2):35
Superficie total (?2):140

500 000 €

582 449 $
44 645 627 ₽

En el mapa

Otros inmuebles de este vendedor